Ga naar content

Groenelaan 48

  • 143 m2 woonoppervlakte
  • 2 slaapkamers
  • Bouwjaar 1922
  • 188 m2 perceel

Karakter, luxe en energielabel A

Aan de geliefde Groenelaan staat deze karakteristieke twee?onder?één?kapwoning met een diepe zonnige tuin, hoogwaardige afwerking en energielabel A.
De huidige eigenaren hebben de woning met grote zorg verbouwd, onderhouden en bewoond, waardoor het geheel voelt als een warm, luxe en instapklaar thuis.

Sfeervol wonen aan de Groenelaan

De gerenoveerde straat ademt karakter. Bij nummer 48 vallen direct de strakke gevel, het fraaie metselverband, het vernieuwde pannendak en het charmante ovale raampje op de tweede verdieping op. Een woning die klopt van buiten én van binnen.

Indeling:

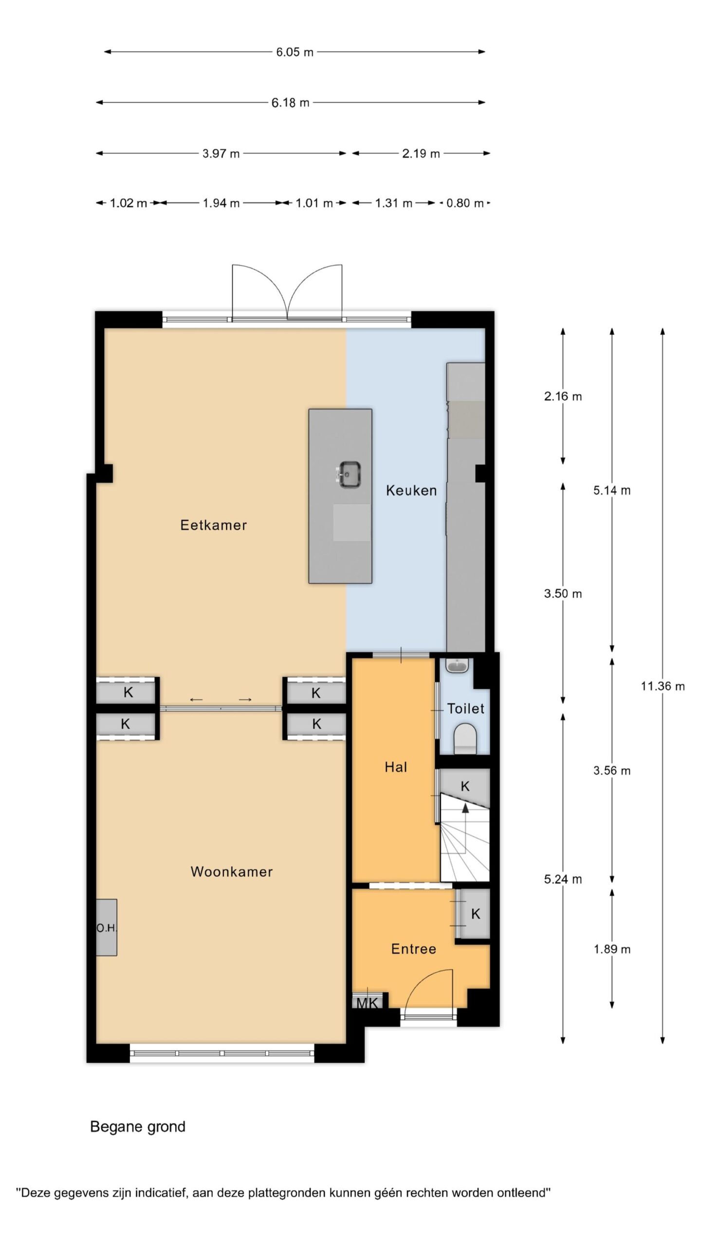
Begane grond:
Via de hal bereik je de royale woonkeuken met kookeiland, Viking gasfornuis, Quooker, combi ctoomoven, inbouw vaatwasser en – koelkast, vloerverwarming en openslaande deuren naar de zonnige achtertuin. Ook vind je hier glas in lood details. De originele en-suite schuifdeuren verbinden de keuken met de sfeervolle woonkamer aan de voorzijde. Hier vind je een eikenhouten visgraatvloer een en een actieve open haard met originele schouw.
De gehele begane grond is uitgevoerd in beton en voorzien van vloerverwarming.

Eerste verdieping:
De masterbedroom heeft de uitstraling van een luxe hotelkamer, compleet met een grote inbouwkast, eikenhouten vloer, een grote raampartij en een badkamer en-suite. Deze badkamer beschikt over een ligbad met jacuzzi, inloopdouche, dubbele wastafel, toilet en vloerverwarming. De tweede kamer op deze verdieping is ingericht als praktische wasruimte en is voorzien van een tegelvloer.

Tweede verdieping:
De tweede verdieping is ingericht als een ruime slaapkamer, maar kan eenvoudig worden opgesplitst in twee kamers. Drie grote Velux dakramen aan de achterzijde zorgen voor veel licht. Ook deze verdieping beschikt over een eigen badkamer met douche, toilet en wastafel.

Buitenruimte:
De diepe achtertuin ligt op het zuidwesten en grenst aan het kindvriendelijke ‘Harmonielaantje’. Hier spelen kinderen nog heerlijk buiten. De tuin beschikt over een berging met luxe overkapping en een dubbele achterontsluiting: één via het recht van overpad bij nummer 46 en één met directe toegang tot het Harmonielaantje (schriftelijk goedgekeurd door de gemeente).

Bouwjaar: 1922
Woonoppervlak: ca. 143 m²
Inhoud: ca. 510 m³
Perceel: 188 m²

Bijzonderheden:
-Grootschalig verbouwd in 2012
-Gevels gereinigd en voorzien van nieuwe knipvoeg
-Grotendeels kunststof kozijnen, HR++ glas, deels draai-/kiepramen met ventilatiestand (2022)
-Begane grond met betonnen vloer en vloerverwarming
-Keuken en badkamer vernieuwd in 2012
-Pannendak vernieuwd en geïsoleerd in 2022
-Markiezen aan de tuinzijde (2022)
-Diepe achtertuin op het zuidwesten
-Luxe tuinhuis met overkapping (2022)
-Direct gelegen aan het Harmonielaantje
-CV?ketel Intergas 2023
-Recht van overpad via nummer 46 + ontsluiting naar Harmonielaantje
-Eikenhouten vloeren op woon- en slaapkamer eerste verdieping
-Waskamer voorzien van tegelvloer
-Ligbad met jacuzzi
-Vloerverwarming in beide badkamers
-Viking fornuis
-Quooker
-Authentieke details zoals glas?in?lood, originele en-suite schuifdeuren en schouw
-Gemetselde tuinmuur (2021)

Interesse in dit huis? Schakel direct jouw eigen NVM-aankoopmakelaar in. Jouw NVM-aankoopmakelaar komt op voor jouw belang en bespaart je tijd, geld en zorgen. Adressen van collega NVM-aankoopmakelaars vind je op Funda.

Alles over deze woning
Overdracht
Prijs€ 650.000 k.k.
StatusBeschikbaar
AanvaardingIn overleg
Aangeboden sinds24 januari 2026
Bouw
Type objectWoonhuis
SoortEengezinswoning
TypeTwee onder één kapwoning
Bouwjaar1922
Dak typeSamengesteld dak
IsolatievormenDakisolatie, Vloerisolatie, Dubbelglas
Oppervlaktes en inhoud
Perceel188 m2
Woonoppervlakte143 m2
Inhoud510 m3
Buitenruimtes gebouwgebonden of vrijstaand0 m2
Tuinoppervlakte95 m2
Indeling
Aantal kamers5
Aantal slaapkamers2
Locatie
LiggingAan park, Aan rustige weg
Tuin
TypeAchtertuin
StaatFraai aangelegd
LiggingZuidwest
AchteromJa
Uitrusting
Soorten warm waterCV ketel
Parkeer faciliteitenOpenbaar parkeren, Parkeervergunningen
Virtuele tour
Ik ben Lars Verhoef, NVM Register Makelaar-Taxateur/ Regiomanager bij Brantjes Beverwijk. Het plannen van een bezichtiging is de eerste stap in de zoektocht naar jouw droomhuis. Ik kijk ernaar uit je binnenkort te ontmoeten en je te helpen bij het vinden van jouw nieuwe thuis!

Plattegronden

Verken de locatie Groenelaan 48
Ik ben Lars Verhoef, NVM Register Makelaar-Taxateur/ Regiomanager bij Brantjes Beverwijk. Het plannen van een bezichtiging is de eerste stap in de zoektocht naar jouw droomhuis. Ik kijk ernaar uit je binnenkort te ontmoeten en je te helpen bij het vinden van jouw nieuwe thuis!