Ga naar content

Gedempte Gracht 68C

  • 50 m2 woonoppervlakte
  • 1 slaapkamers
  • Bouwjaar 2025

Starters opgelet! Je kunt nu wonen in het hart van Zaandam in een gloednieuw appartement!

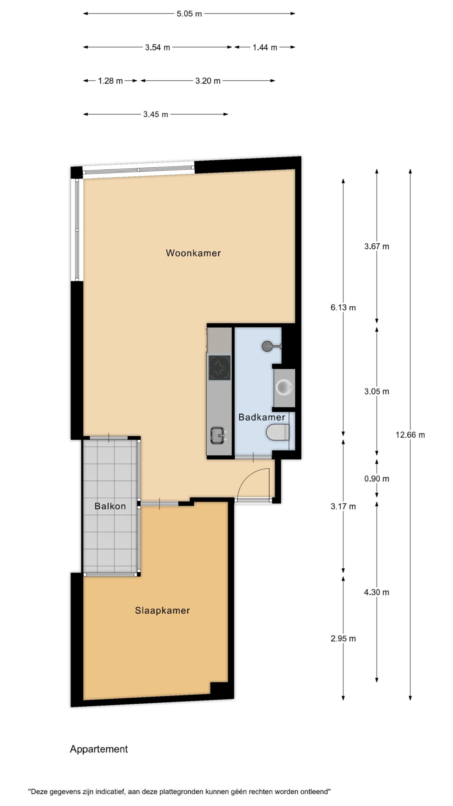
Aan de Gedempte Gracht in Zaandam bevindt zich dit gloednieuwe appartement. Laten we een kijkje nemen bij Gedempte Gracht 68C. Dit stijlvolle appartement beschikt over een fraaie nieuwe vloer met comfortabele vloerverwarming. Via de hal stap je de lichte woonkamer met open keuken binnen. Dankzij de grote ramen heb je een prachtig uitzicht over de Vinkenstraat en geniet je van veel daglicht en privacy. Er is volop ruimte voor een gezellige zithoek en een eettafel. De strakke, moderne keuken heeft een mooie uitstraling en is voorzien van een inductiekookplaat, koelkast, combi-oven en een vaatwasser – alles wat je nodig hebt om direct aan de slag te gaan.

Aan de andere zijde van het appartement bevindt zich de verrassend ruime slaapkamer. Ook hier zorgen de grote raampartijen voor een fijne lichtinval en heb je direct zicht op je eigen balkon – een heerlijke plek om je dag ontspannen te beginnen of juist rustig af te sluiten. Er is meer dan genoeg ruimte voor een royaal tweepersoonsbed én een ruime kastenwand. De badkamer is een echte eyecatcher: zeer luxe en stijlvol afgewerkt met een ruime inloopdouche, een strak wastafelmeubel en een toilet. Deze badkamer geeft je elke dag een hotelachtige ervaring. Alles is splinternieuw, dus je kunt er zonder enige verbouwing zó in – instap klaar!

Bij de complete renovatie is er veel aandacht besteed aan duurzaamheid en comfort. Zo is het appartement van top tot teen geïsoleerd met muur-, dak- en raamisolatie, wat resulteert in een aangenaam binnenklimaat en een lagere energierekening.

– Bouwjaar: 2025 (pand 1975)
– Woonoppervlakte: 50m²
– Energielabel: B
– Gelegen op: Eigen grond

Het appartement is gelegen aan de levendige winkelstraat van Zaandam: de Gedempte Gracht. Het unieke van dit appartement is dat het aan de achterkant van het complex ligt. Dit geeft je veel privacy, terwijl je zodra je de deur uitstapt direct in de bruisende stad bent. Een fijne plek waar je woont boven de winkels, met alle voorzieningen direct in de buurt. Op korte loopafstand ligt de Dam, een sfeervol plein met diverse restaurants, cafés, een bioscoop en supermarkten – ideaal voor de dagelijkse boodschappen of een avond uit. Ook het NS-station van Zaandam bevindt zich op slechts enkele minuten lopen. Vanaf hier reis je snel en rechtstreeks naar onder andere Amsterdam Sloterdijk en Amsterdam Centraal. Ook steden als Haarlem, Alkmaar en luchthaven Schiphol zijn uitstekend bereikbaar. Een centrale locatie met volop comfort en gemak.

Bijzonderheden:
– Wonen aan de Gedempte Gracht midden in Zaandam;
– Tweekamerappartement;
– Voorzien van vloerverwarming;
– Vernieuwde keuken met inbouwapparatuur;
– Veel lichtinval door grote raampartijen;
– Beschikking over een buitenruimte;
– Voorzien van een eigen cv-ketel;
– Alle voorzieningen van een stad binnen handbereik;
– Het complex beschikt over een eigen VvE, beheer Quadyck;
– Servicekosten conform begroting 2025: € 135,89 p/m (nr. 68C);
– Geen separate berging;
– Notariskeuze ligt bij de verkoper, Dijkhuis Koeman in Koog aan de Zaan;
– Oplevering in overleg, kan spoedig.

Heb je interesse in dit huis? Schakel direct jouw eigen NVM-aankoopmakelaar in. Jouw NVM-aankoopmakelaar staat voor je belangen en bespaart je tijd, geld en zorgen. Adressen van collega NVM-aankoopmakelaars vind je op Funda.

Alles over deze woning
Overdracht
Prijs€ 310.000 k.k.
StatusVerkocht onder voorbehoud
AanvaardingIn overleg
Aangeboden sinds12 oktober 2025
Bouw
Type objectAppartement
Bouwjaar2025
SoortBovenwoning
Woonlaag2
Dak typePlat dak
IsolatievormenDakisolatie, Muurisolatie, Vloerisolatie, Dubbelglas, Volledig geïsoleerd, HR glas
Oppervlaktes en inhoud
Woonoppervlakte50 m2
Inhoud170 m3
Buitenruimtes gebouwgebonden of vrijstaand4 m2
Indeling
Aantal kamers2
Aantal slaapkamers1
Tuin
AchteromNee
Uitrusting
Soorten warm waterCV ketel
Parkeer faciliteitenBetaald parkeren
Virtuele tour
Ik ben Jeffrey Veerkamp, NVM Makelaar / Vestigingsmanager bij Brantjes Zaandam. Het plannen van een bezichtiging is de eerste stap in de zoektocht naar jouw droomhuis. Ik kijk ernaar uit je binnenkort te ontmoeten en je te helpen bij het vinden van jouw nieuwe thuis!

Plattegronden

Verken de locatie Gedempte Gracht 68C
Ik ben Jeffrey Veerkamp, NVM Makelaar / Vestigingsmanager bij Brantjes Zaandam. Het plannen van een bezichtiging is de eerste stap in de zoektocht naar jouw droomhuis. Ik kijk ernaar uit je binnenkort te ontmoeten en je te helpen bij het vinden van jouw nieuwe thuis!