Ga naar content

Florastraat 31

  • 106 m2 woonoppervlakte
  • 4 slaapkamers
  • Bouwjaar 1966
  • 146 m2 perceel

Uitgebouwde tussenwoning met tuin op het zuiden!

Stap binnen aan de Florastraat 31 in Wormer: een lichte en ruime gezinswoning waar je je direct thuis voelt. Hier woon je in een levendige woonomgeving, met alle dagelijkse voorzieningen om de hoek en een zonnige achtertuin op het zuiden, waar je van ’s morgens vroeg tot in de avond heerlijk kunt genieten. De woning is door de jaren heen netjes onderhouden én gemoderniseerd met onder andere een energielabel C, zonnepanelen en een nieuwe cv-ketel uit 2024.

Met in totaal vier slaapkamers, een aanbouw met serre, een moderne badkamer en een fijne tuin is dit zo’n woning waar je zonder veel moeite in kunt trekken. Dankzij de opbouw op de tweede verdieping beschik je bovendien over twee volwaardige slaapkamers extra, ideaal voor een gezin, thuiswerkers of logees.

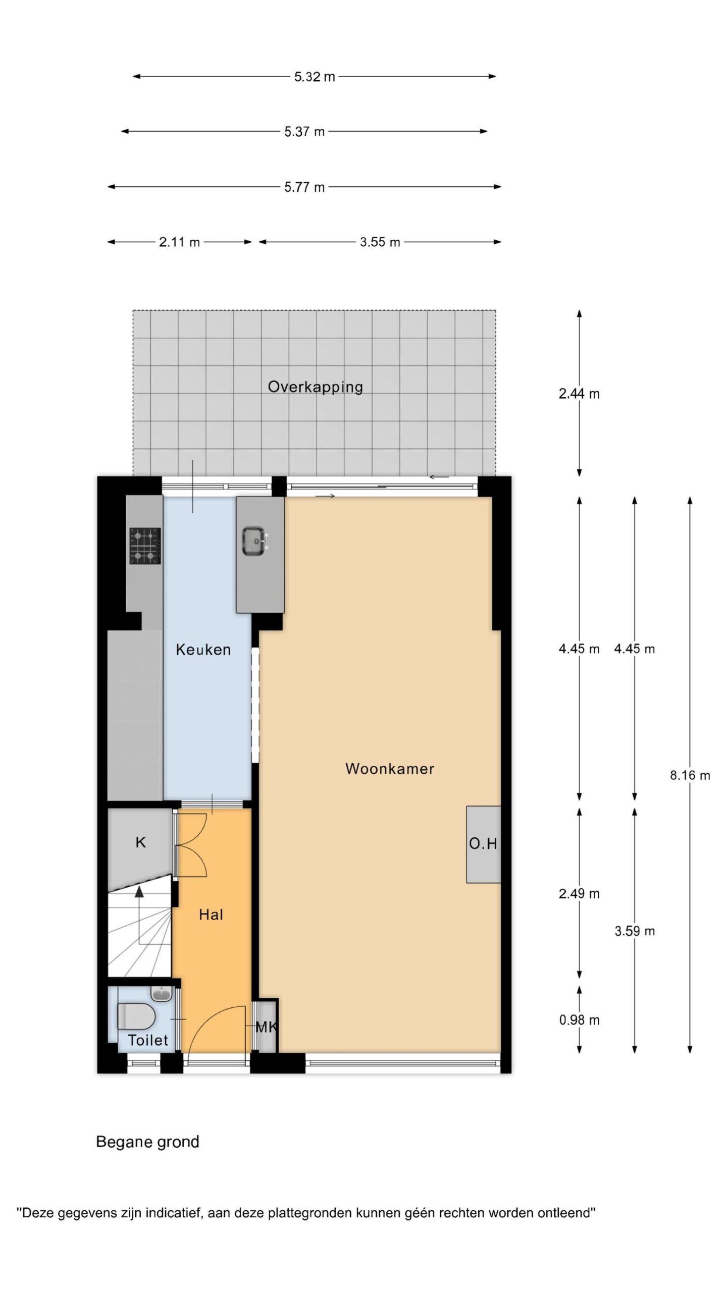
Begane grond
Je komt binnen in de hal met meterkast, toilet en ruimte voor jassen en schoenen. Vanuit hier stap je de lichte doorzonwoonkamer binnen, waar de grote ramen zorgen voor een fijne, warme sfeer. Aan de voorzijde maak je een gezellige zithoek en aan de achterzijde is volop ruimte voor een grote eettafel.

Aan de achterzijde is bovendien een serre, waardoor je extra leefruimte én een prachtig uitzicht op de tuin hebt. Dit is een heerlijke plek voor een leeshoek, speelgedeelte voor kinderen of een fijne overgang tussen binnen en buiten.
De keuken bevindt zich in de aanbouw en is in 2011 vernieuwd. De opstelling biedt veel werk- en opbergruimte en is voorzien van diverse inbouwapparatuur, waaronder een vaatwasser uit 2022. Via de serre loop je zo de zonnige, op het zuiden gelegen tuin in.

Eerste verdieping
Op de eerste verdieping bevinden zich twee ruime slaapkamers. Beide kamers hebben grote ramen, zijn licht en praktisch in te delen en uitstekend geschikt als master bedroom, kinderkamer of werkkamer.
De badkamer (2014) heeft een frisse, moderne uitstraling en is voorzien van een douche, wastafelmeubel en aansluitingen voor de wasmachine.

Tweede verdieping
Via de vaste trap bereik je de tweede verdieping, waar dankzij de opbouw twee volwaardige slaapkamers zijn gerealiseerd. Beide kamers profiteren van daglicht en voelen door de hoogte ruim aan.
Onder de schuine delen is praktische bergruimte, en er is eventueel plek voor wasapparatuur. Een ideale verdieping voor gezinnen die extra ruimte zoeken, of voor wie graag een werkkamer en logeerkamer wil combineren.

Buitenruimte
De achtertuin ligt pal op het zuiden en is daarmee een ideale plek voor zonliefhebbers. De tuin biedt meerdere zitplekken, ruimte voor groen en is perfect voor lange zomerdagen buiten.
De tuin is achterom bereikbaar, handig voor fietsen, containers of tuinbenodigdheden. Aan de voorzijde ligt een nette voortuin die zorgt voor een verzorgde binnenkomst.

Duurzaamheid & installaties
De woning beschikt over dakisolatie, dubbel glas, glasvezel-internet, drie zonnepanelen (circa 2010) en een moderne Vaillant EcoTec Plus cv-ketel uit 2024. Hiermee woon je comfortabel en energiezuiniger.

Kenmerken:
Bouwjaar: 1966
Perceeloppervlakte: 146 m²
Woonoppervlakte: 106 m²
Inhoud: 362 m³
Energielabel: C

DE WOONWIJK / LIGGING
Florastraat 31 ligt in een woonwijk met een levendig karakter. Je woont hier centraal in Wormer, dichtbij winkels, supermarkten, scholen, sportclubs, speeltuinen en andere dagelijkse voorzieningen. Een praktische en prettige locatie voor gezinnen of iedereen die graag alles binnen handbereik heeft.

Natuurliefhebbers lopen of fietsen zo naar het uitgestrekte Wormer- en Jisperveld, waar je heerlijk kunt wandelen, varen en ontspannen in het groen. Dankzij de nabijheid van station Wormerveer en de uitvalswegen richting Zaanstad en Amsterdam is de bereikbaarheid uitstekend.

BIJZONDERHEDEN
* Achterzijde op het zuiden voorzien van een serre;
* Woning voorzien van een aanbouw en een opbouw;
* Luxe Badkamer vernieuwd in 2014;
* Cv-ketel Vaillant EcoTec Plus uit 2024;
* 3 zonnepanelen (ca. 2010);
* Aanvaarding in overleg.

Interesse in dit huis? Schakel direct jouw eigen NVM-aankoopmakelaar in. Jouw NVM-aankoopmakelaar komt op voor jouw belang en bespaart je tijd, geld en zorgen. Adressen van collega NVM-aankoopmakelaars vind je op Funda.

Alles over deze woning
Overdracht
Prijs€ 450.000 k.k.
StatusBeschikbaar
AanvaardingIn overleg
Aangeboden sinds16 november 2025
Bouw
Type objectWoonhuis
SoortEengezinswoning
TypeTussenwoning
Bouwjaar1966
Dak typeMansardedak
IsolatievormenDakisolatie, Dubbelglas
Oppervlaktes en inhoud
Perceel146 m2
Woonoppervlakte106 m2
Inhoud362 m3
Buitenruimtes gebouwgebonden of vrijstaand13 m2
Tuinoppervlakte80 m2
Indeling
Aantal kamers6
Aantal slaapkamers4
Locatie
LiggingAan rustige weg, In woonwijk
Tuin
TypeAchtertuin
StaatFraai aangelegd
LiggingZuid
AchteromJa
Uitrusting
Soorten warm waterCV ketel
Parkeer faciliteitenOpenbaar parkeren
Virtuele tour
Ik ben Erik Hempenius, NVM Register Makelaar-Taxateur / Regiomanager bij Brantjes Wormerland. Het plannen van een bezichtiging is de eerste stap in de zoektocht naar jouw droomhuis. Ik kijk ernaar uit je binnenkort te ontmoeten en je te helpen bij het vinden van jouw nieuwe thuis!

Plattegronden

Verken de locatie Florastraat 31
Ik ben Erik Hempenius, NVM Register Makelaar-Taxateur / Regiomanager bij Brantjes Wormerland. Het plannen van een bezichtiging is de eerste stap in de zoektocht naar jouw droomhuis. Ik kijk ernaar uit je binnenkort te ontmoeten en je te helpen bij het vinden van jouw nieuwe thuis!