Ga naar content

Florastraat 18

  • 106 m2 woonoppervlakte
  • 3 slaapkamers
  • Bouwjaar 1933
  • 184 m2 perceel

Ontdek de charme van deze jaren ’30 woning: instapklaar en boordevol moderne accenten!

Stap binnen en ervaar een ruime hal waar de strakke zwarte deuren en het aparte, moderne toilet direct een frisse indruk maken. Op de begane grond voel je de kwaliteit al via de stevige betonnen vloer met vloerverwarming, mooi geaccentueerd door een stijlvolle visgraatvloer en perfect gestuukte wanden. De fraai ingerichte hoekkeuken is volledig uitgerust met de modernste apparatuur: denk aan koelkast, vriezer, vaatwasser, combi-oven, inductiekookplaat en afzuigkap.

Op de eerste verdieping vind je twee ruim opgezette slaapkamers, elk voorzien van nieuwe radiatoren en een warme laminaatvloer. De eigentijdse badkamer, compleet met inloopdouche, toilet, wastafelmeubel en vloerverwarming, zorgt voor een luxueuze start van je dag.

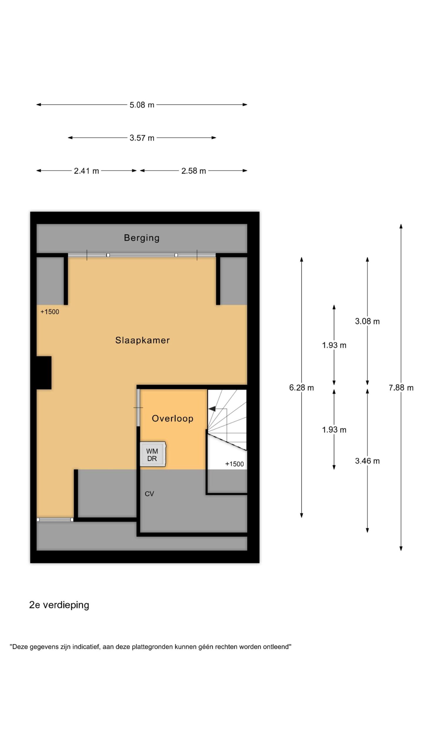
De tweede verdieping biedt niet alleen een praktische wasruimte en ruimte voor de cv-ketel, maar ook een grote kamer met laminaatvloer, waar dakkapellen voor extra lichtinval en een ruimtelijk gevoel zorgen. Door de aangepaste dakconstructie is de zolder nog ruimer geworden, wat tal van mogelijkheden biedt.

Buiten beschikt de woning over een eigen oprit en een tuin op het westen, zodat je in de avond heerlijk van de zonsondergang kunt genieten. Bovendien is er een handige berging voor de extra opslag die je nodig hebt.

Kortom, deze woning combineert de authentieke jaren ’30 charme met hedendaags comfort en is klaar om volgens jouw wensen in te richten. Maak er je eigen thuis van!

Bouwjaar: 1933
Woonoppervlakte wonen: ca. 106 m²
Externe bergruimte: ca.6 m²
inhoud: ca. 385 m³
Perceel: 184 m²
Energielabel: A

De woning is gelegen aan de Florastraat in Beverwijk, in de directe omgeving zijn diverse voorzieningen voorhanden. Er zijn diverse scholen, het theater, restaurants (o.a. de Open Keuken en de Smaeckkamer) in de nabijheid en het centrum van Beverwijk is op korte afstand gelegen. NS-Station Beverwijk is bereikbaar met 5 minuten fietsen en heeft snelle verbindingen naar Amsterdam, Haarlem, Uitgeest en Alkmaar. Ook per eigen vervoer perfecte aansluiting op de A22 en A9, en je kunt de zee bijna horen. Met een kwartier fietsen sta je namelijk op het strand bij Wijk aan Zee.

Bijzonderheden:
– zonnepanelen geplaatst in 2025;
– spouwmuurisolatie in 2025;
– Energielabel A;
– zonnige tuin op het westen met achterom;
– erker aan de voorzijde;
– twee dakkapellen op tweede verdieping;
– gehele woning verbouwd in 2018;
– cv ketel 2018;
– eigen oprit;
– meterkast vernieuwd.

Interesse in dit huis? Schakel direct je eigen NVM-aankoopmakelaar in.
Jouw NVM-aankoopmakelaar komt op voor jouw belang en bespaart je tijd, geld en zorgen.
Adressen van collega NVM-aankoopmakelaars vind je op Funda.

Alles over deze woning
Overdracht
Prijs€ 545.000 k.k.
StatusBeschikbaar
AanvaardingIn overleg
Aangeboden sinds14 november 2025
Bouw
Type objectWoonhuis
SoortEengezinswoning
TypeHoekwoning
Bouwjaar1933
Dak typeZadeldak
Oppervlaktes en inhoud
Perceel184 m2
Woonoppervlakte106 m2
Inhoud385 m3
Buitenruimtes gebouwgebonden of vrijstaand0 m2
Indeling
Aantal kamers4
Aantal slaapkamers3
Locatie
LiggingIn woonwijk
Tuin
TypeAchtertuin
StaatVerzorgd
LiggingWest
AchteromJa
Uitrusting
Soorten warm waterCV ketel
Parkeer faciliteitenOpenbaar parkeren, Op eigen terrein
Virtuele tour
Ik ben Lars Verhoef, NVM Register Makelaar-Taxateur/ Regiomanager bij Brantjes Beverwijk. Het plannen van een bezichtiging is de eerste stap in de zoektocht naar jouw droomhuis. Ik kijk ernaar uit je binnenkort te ontmoeten en je te helpen bij het vinden van jouw nieuwe thuis!

Plattegronden

Verken de locatie Florastraat 18
Ik ben Lars Verhoef, NVM Register Makelaar-Taxateur/ Regiomanager bij Brantjes Beverwijk. Het plannen van een bezichtiging is de eerste stap in de zoektocht naar jouw droomhuis. Ik kijk ernaar uit je binnenkort te ontmoeten en je te helpen bij het vinden van jouw nieuwe thuis!