Ga naar content

Esther de Boer-van Rijkstraat 23

  • 113 m2 woonoppervlakte
  • 4 slaapkamers
  • Bouwjaar 1989
  • 127 m2 perceel

Rustig wonen in de populaire wijk Westerwatering – Esther de Boer-van Rijkstraat 23, Zaandam!

In de geliefde en kindvriendelijke wijk Westerwatering ligt deze uitstekend verzorgde eengezinswoning aan de rustige, autoluwe Esther de Boer-van Rijkstraat. Parkeren doe je eenvoudig in de straat, waar altijd voldoende plek is. Via de keurige verzorgde voortuin bereik je de woning.

Binnen word je ontvangen in de ruime, lichte woonkamer, een fijne leefruimte met voldoende plek voor zowel een comfortabele zithoek als een royale eettafel. Aan de voorzijde bevindt zich de moderne, luxe keuken
(AEG inbouwapparatuur, geplaatst in 2017), met een rustige uitstraling en uitzicht op de straat. Vanuit de woonkamer stap je de ca. 11 meter diepe achtertuin in, gelegen op het westen. Hier geniet je tot in de avond van de zon. De tuin heeft bovendien een stenen berging én is zeer onderhoudsvriendelijk.

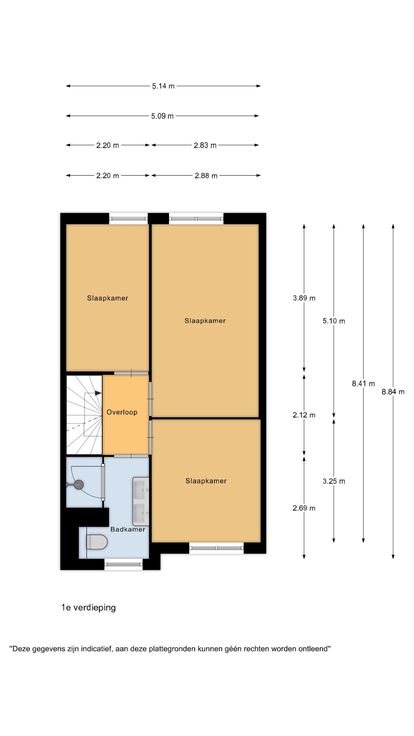
Op de eerste verdieping bevinden zich drie slaapkamers, waaronder een ruime master bedroom. De afwerking is op elke kamer keurig en compleet, mede dankzij de hoogwaardige laminaatvloer en de aanwezigheid van horren op de begane grond en eerste verdieping. De moderne badkamer (2017) is luxe uitgevoerd met een inloopdouche, dubbele wastafel en tweede toilet. De tweede verdieping is nu ingericht als ruime vierde slaapkamer, maar biedt volop mogelijkheden. Met bijvoorbeeld de plaatsing van dakkapellen kunnen hier eenvoudig extra kamers worden gecreëerd.

Kortom: een instapklare, moderne woning op een rustige plek met vier slaapkamers, een zonnige tuin en een hoogwaardige afwerking.

Wil je deze prachtige woning met eigen ogen zien? Bel ons voor jouw bezichtiging!

– Bouwjaar: 1989
– Woonoppervlakte: 113 m²
– Perceeloppervlakte: 127 m² erfpacht grond
– Energielabel: A

Westerwatering is één van de meest gewilde woonwijken van Zaandam. De wijk staat bekend om haar rustige, groene karakter en de kindvriendelijke opzet met diverse speelplaatsen, wandelpaden en autoluwe straten. Het is een plek waar buren elkaar kennen en waar kinderen veilig kunnen spelen.

Het winkelcentrum Westerwatering ligt op korte afstand en biedt alles wat je dagelijks nodig hebt: supermarkten, speciaalzaken, drogisterijen en diverse eetgelegenheden. Daarnaast ben je binnen enkele minuten in het bruisende centrum van Zaandam met nog meer winkels, horeca en cultuur. Ook voor gezinnen is Westerwatering ideaal. In de directe omgeving vind je meerdere basisscholen en kinderopvanglocaties, allemaal op loop- of fietsafstand. Hierdoor heb je alle voorzieningen voor het hele gezin binnen handbereik.

Reizigers en forenzen zitten hier perfect. Het station Zaandam ligt op korte afstand en biedt snelle en frequente verbindingen richting Amsterdam, Schiphol, Haarlem en Alkmaar. Binnen enkele minuten zit je op de trein richting de grote steden. Met de auto ben je eveneens vlot onderweg: de wijk heeft uitstekende uitvalswegen naar de A8, A7 en A10. Of je nu richting Amsterdam, Purmerend of verder wilt reizen, je bent er zo.

– Instapklare woning met nette afwerking en veel ruimte;
– De woning beschikt over vier goede slaapkamers;
– Moderne keuken aan de voorzijde, met rustige uitstraling en uitzicht op de straat;
– Ruime verzorgde badkamer met inloopdouche, dubbele wastafel en tweede toilet;
– Electrische installatie vernieuwd in 2017;
– Diepe achtertuin van ca. 11 meter op het westen, voorzien van een elektrisch zonnescherm en stenen berging.
– Rustige, autoluwe straat met altijd voldoende parkeergelegenheid.
– Gelegen in de populaire, kindvriendelijke wijk Westerwatering met scholen, kinderopvang en speelvoorzieningen nabij;
– Op korte afstand van winkelcentrum Westerwatering, station Zaandam en uitvalswegen (A8/A7/A10);
– Erfpachtcanon afgekocht t/m 31 maart 2038;
– Oplevering in overleg.

Interesse in dit huis? Schakel direct je eigen NVM-aankoopmakelaar in. Jouw NVM-aankoopmakelaar komt op voor jouw belang en bespaart je tijd, geld en zorgen. Adressen van collega NVM-aankoopmakelaars vind je op Funda.

Alles over deze woning
Overdracht
Prijs€ 450.000 k.k.
StatusVerkocht onder voorbehoud
AanvaardingIn overleg
Aangeboden sinds30 november 2025
Bouw
Type objectWoonhuis
SoortEengezinswoning
TypeTussenwoning
Bouwjaar1989
Dak typeZadeldak
IsolatievormenDakisolatie, Muurisolatie, Vloerisolatie, Dubbelglas, Volledig geïsoleerd
Oppervlaktes en inhoud
Perceel127 m2
Woonoppervlakte113 m2
Inhoud385 m3
Buitenruimtes gebouwgebonden of vrijstaand0 m2
Indeling
Aantal kamers5
Aantal slaapkamers4
Locatie
LiggingAan rustige weg, In woonwijk
Tuin
TypeAchtertuin
StaatVerzorgd
LiggingWest
AchteromJa
Uitrusting
Soorten warm waterCV ketel
Parkeer faciliteitenOpenbaar parkeren
Virtuele tour
Ik ben Jeffrey Veerkamp, NVM Makelaar / Vestigingsmanager bij Brantjes Zaandam. Het plannen van een bezichtiging is de eerste stap in de zoektocht naar jouw droomhuis. Ik kijk ernaar uit je binnenkort te ontmoeten en je te helpen bij het vinden van jouw nieuwe thuis!

Plattegronden

Verken de locatie Esther de Boer-van Rijkstraat 23
Ik ben Jeffrey Veerkamp, NVM Makelaar / Vestigingsmanager bij Brantjes Zaandam. Het plannen van een bezichtiging is de eerste stap in de zoektocht naar jouw droomhuis. Ik kijk ernaar uit je binnenkort te ontmoeten en je te helpen bij het vinden van jouw nieuwe thuis!