Ga naar content

Dorpsstraat 772

  • 113 m2 woonoppervlakte
  • 4 slaapkamers
  • Bouwjaar 1934
  • 320 m2 perceel

Dit is een huis om verliefd op te worden, met een tuin die je niet snel zult vergeten!

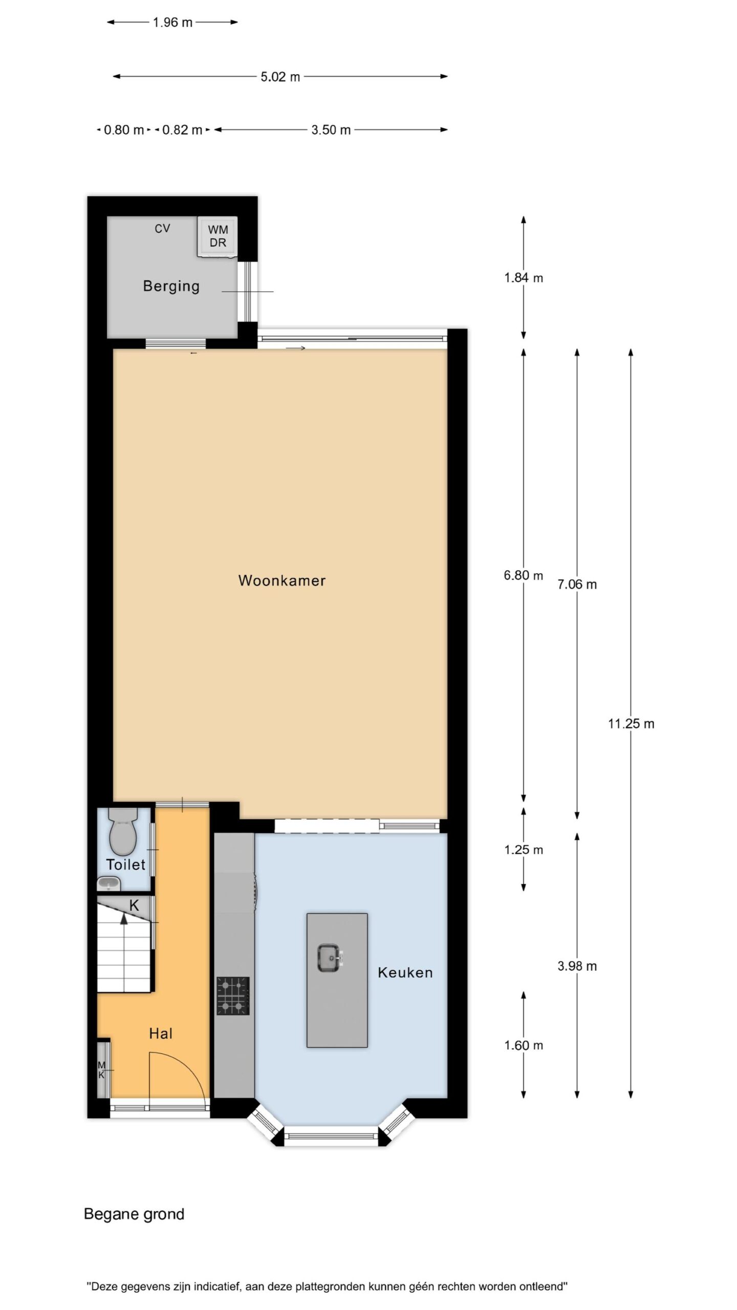
Aan de Dorpsstraat 772 in Assendelft staat deze verrassend ruime en strak afgewerkte woning. Zodra je binnenkomt valt meteen de afwerking op: een prachtige visgraatvloer met vloerverwarming, hoge plinten en strak gestuukte wanden. De woonkamer is royaal opgezet en biedt ruimte voor een grote bank, terwijl er daarnaast meer dan voldoende plek overblijft voor een eettafel. De grote schuifpui zorgt voor veel lichtinval en geeft direct uitzicht op de enorme achtertuin van circa 27 meter diep. Aansluitend op de woonkamer vind je een handige wasruimte met aansluiting voor de wasmachine en droger. Zo is het altijd netjes opgeruimd. De woning is niet alleen uitgebouwd op de begane grond maar ook op de verdieping!

Aan de voorzijde bevindt zich de sfeervolle keuken, waar het spoeleiland met barretje direct het hart van de ruimte vormt. Hier kun je gezellig aanschuiven met een kop koffie of borrel, terwijl er wordt gekookt. De keuken is in 2018 vernieuwd en uitgerust met een inductiekookplaat, oven, vaatwasser en een Quooker. De erker aan de voorzijde laat royaal daglicht binnen en de authentieke details, zoals het glas-in-lood, geven het geheel een warme en karaktervolle uitstraling. Perfect voor wie houdt van koken én gezelligheid.

Op de eerste verdieping zijn vier slaapkamers aanwezig, allemaal van goed formaat. De zichtbare houten balken geven de kamers karakter en maken de verdieping sfeervol en authentiek. Deze ruimtes bieden volop mogelijkheden: van slaapkamers en thuiskantoor tot speel- of logeerkamer. Ook de badkamer is netjes afgewerkt en voorzien van een ruime inloopdouche, dubbele wastafel en een toilet. Bovendien is er boven nog een bergzolder, ideaal voor spullen die niet iedere dag nodig zijn.

Dan de tuin, en wat voor één. Met een diepte van circa 27 meter is er altijd wel een plek in de zon of schaduw te vinden. Je hebt hier een perfecte combinatie van groen, privacy en ruimte, zonder directe achterburen en dus zonder inkijk. Achterin de tuin staat een vrijstaande stenen berging, ideaal voor fietsen en tuingereedschap. De berging beschikt over een vliering waar seizoensspullen eenvoudig kunnen worden opgeborgen.

Naast het heerlijke wooncomfort biedt deze woning ook een prettig energielabel B. De gevels, daken en vloer zijn al goed geïsoleerd en op het dak liggen zes zonnepanelen. Dat betekent een lagere energierekening, meer wooncomfort en een woning die al toekomstgericht is.

Ben jij benieuwd hoe de woning er in het echt uitziet? Plan dan snel jouw bezichtiging voor de Dorpsstraat 772 in Assendelft!

– Bouwjaar: 1934
– Woonoppervlakte: 113 m²
– Berging: 25 m²
– Perceeloppervlakte: 320 m² eigen grond
– Energielabel: B

De woning heeft een prettige centrale ligging in Assendelft, met diverse voorzieningen in de directe omgeving. Scholen, sportverenigingen en het station Krommenie-Assendelft zijn allemaal goed bereikbaar. Voor dagelijkse boodschappen en andere voorzieningen ligt winkelcentrum De Saen op korte afstand, waar je onder andere terechtkunt bij supermarkten, een bakker, slager en diverse speciaalzaken. Met de trein sta je binnen circa twintig minuten in Amsterdam. Reis je met de auto, dan ben je via de A8 en A9 snel onderweg richting Amsterdam, Haarlem of Alkmaar.

Bijzonderheden:
– Twee-onder-één-kapwoning aan de Dorpsstraat in Assendelft;
– Parkeergelegenheid op eigen terrein;
– Geen directe achterburen;
– Ruime woonkamer met visgraatvloer en vloerverwarming;
– Moderne keuken met spoeleiland en bar;
– Grote schuifpui naar de diepe, zonnige tuin;
– Vier slaapkamers op de verdieping;
– Nette badkamer met dubbele wastafel en inloopdouche;
– Authentieke details, zoals glas-in-lood;
– Riante tuin van circa 27 meter diep;
– Grote stenen berging met vliering;
– Voorzien van zes zonnepanelen;
– Prettige centrale ligging;
– De gemeente Zaanstad monitort de fundering, het recent opgestelde rapport geeft een positieve beoordeling;
– Oplevering in overleg.

Interesse in dit huis? Schakel direct je eigen NVM-aankoopmakelaar in. Jouw NVM-aankoopmakelaar komt op voor jouw belang en bespaart je tijd, geld en zorgen. Adressen van collega NVM-aankoopmakelaars vind je op Funda.

Alles over deze woning
Overdracht
Prijs€ 595.000 k.k.
StatusVerkocht
AanvaardingIn overleg
Aangeboden sinds7 november 2025
Bouw
Type objectWoonhuis
SoortEengezinswoning
TypeTwee onder één kapwoning
Bouwjaar1934
Dak typeMansardedak
IsolatievormenDakisolatie, Muurisolatie, Vloerisolatie, Dubbelglas, HR glas
Oppervlaktes en inhoud
Perceel320 m2
Woonoppervlakte113 m2
Inhoud405 m3
Buitenruimtes gebouwgebonden of vrijstaand0 m2
Tuinoppervlakte246 m2
Indeling
Aantal kamers5
Aantal slaapkamers4
Locatie
LiggingAan water, In woonwijk
Tuin
TypeAchtertuin
StaatVerzorgd
LiggingNoordwest
AchteromJa
Uitrusting
Soorten warm waterCV ketel
Parkeer faciliteitenOpenbaar parkeren, Op eigen terrein
Virtuele tour
Ik ben Jan den Adel, NVM Register Makelaar/ Nieuwbouw Specialist bij Brantjes Assendelft. Het plannen van een bezichtiging is de eerste stap in de zoektocht naar jouw droomhuis. Ik kijk ernaar uit je binnenkort te ontmoeten en je te helpen bij het vinden van jouw nieuwe thuis!

Plattegronden

Verken de locatie Dorpsstraat 772
Ik ben Jan den Adel, NVM Register Makelaar/ Nieuwbouw Specialist bij Brantjes Assendelft. Het plannen van een bezichtiging is de eerste stap in de zoektocht naar jouw droomhuis. Ik kijk ernaar uit je binnenkort te ontmoeten en je te helpen bij het vinden van jouw nieuwe thuis!