Ga naar content

Dorpsstraat 29C

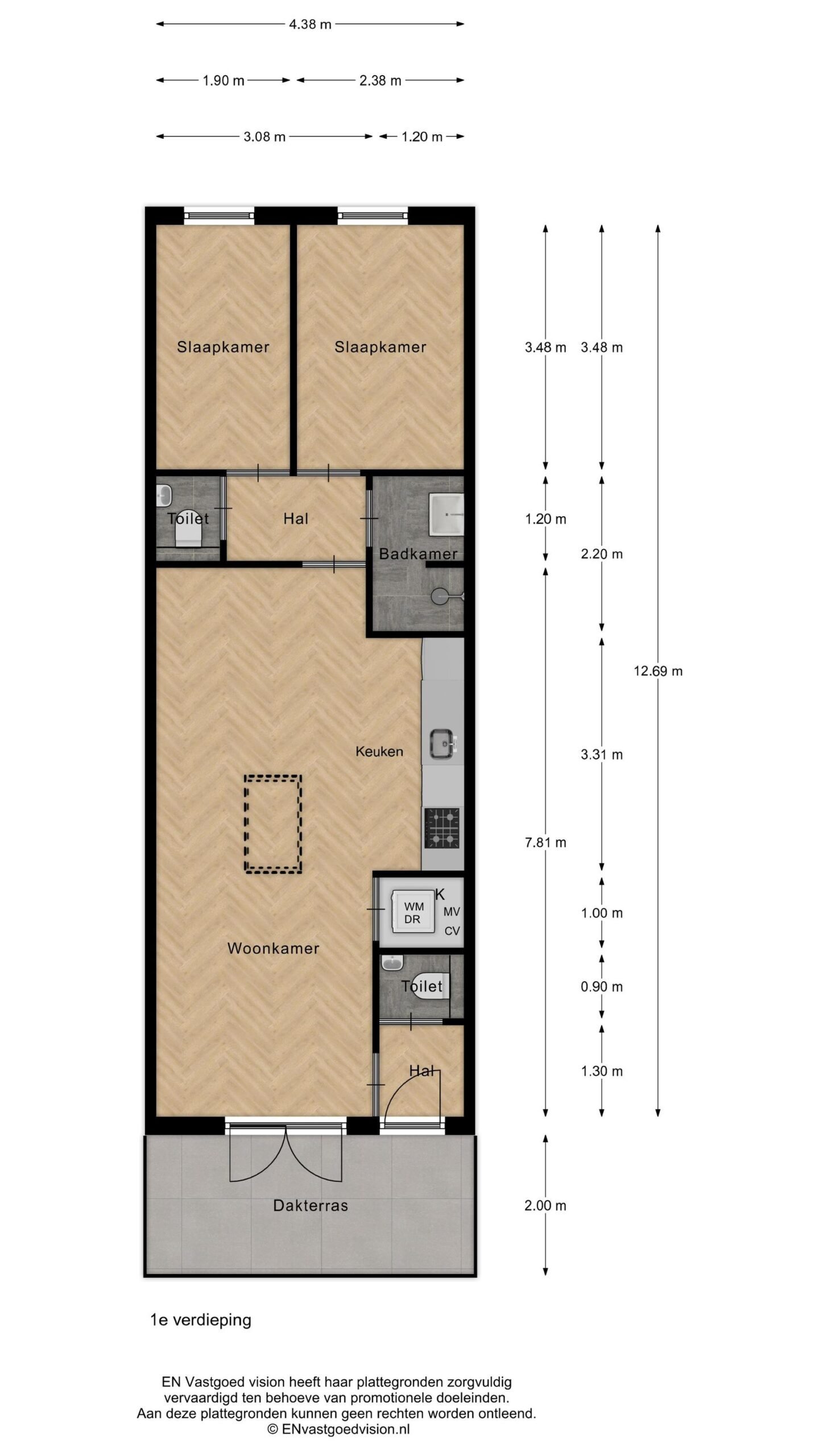
  • 56 m2 woonoppervlakte
  • 2 slaapkamers
  • Bouwjaar 2024

TE HUUR: Volledig afgewerkt appartement op de eerste verdieping in het centrum van Wormer!

Wil je wonen in het hart van Wormer met alle voorzieningen op loopafstand? Dan is dit fraaie appartement met 2 slaapkamers midden in het centrum van Wormer wellicht iets voor jou.

Het 3-kamerappartement bevindt zich op de eerste verdieping en is te bereiken via een trap. De ruimte is luxe afgewerkt met stijlvolle pvc-vloeren, hoge plinten, glad gestucte en wit gesausde wanden, een moderne keuken voorzien van diverse inbouwapparatuur en een fraaie badkamer met douche en wastafel.

Vanaf de entree heb je toegang tot de woonkamer en een apart toilet. De ruime woonkamer, met een open keuken, biedt alle gemakken zoals een inductiekookplaat, vaatwasser, koel-/vriescombinatie en combi-oven/magnetron. Via de woonkamer bereik je beide slaapkamers, een extra apart toilet en de badkamer. Bovendien is er aan de voorzijde van het appartement een dakterras.

Enthousiast geworden? Neem nu contact op om een bezichtiging in te plannen!

Huurcondities:
– huurprijs exclusief € 50,- per maand servicekosten;
– huurprijs exclusief gas, elektra, water, internet en televisie;
– waarborgsom: 2 maanden huur;
– huurtermijn minimaal 12 maanden
– inkomenseis: bruto inkomen gelijk aan 3x maandhuur;
– onder voorbehoud van gunning verhuurder;
– onder voorbehoud van positieve uitkomst screening inkomensgegevens en legitimatie huurder;
– huisdieren in overleg;
– roken in de woning en het complex niet toegestaan.

Alles over deze woning
Overdracht
Prijs€ 1.425 p/m
StatusVerhuurd
AanvaardingPer datum
Aangeboden sinds18 oktober 2025
Bouw
Type objectAppartement
Bouwjaar2024
SoortPortiekflat
Woonlaag1
Dak typePlat dak
IsolatievormenVolledig geïsoleerd
Oppervlaktes en inhoud
Woonoppervlakte56 m2
Inhoud140 m3
Buitenruimtes gebouwgebonden of vrijstaand10 m2
Indeling
Aantal kamers3
Aantal slaapkamers2
Locatie
LiggingIn centrum
Tuin
AchteromNee
Uitrusting
Soorten warm waterCV ketel
Parkeer faciliteitenOpenbaar parkeren
Ik ben Danilla Prigge, Verhuurmakelaar bij Brantjes Beverwijk. Het plannen van een bezichtiging is de eerste stap in de zoektocht naar jouw droomhuis. Ik kijk ernaar uit je binnenkort te ontmoeten en je te helpen bij het vinden van jouw nieuwe thuis!
Verken de locatie Dorpsstraat 29C
Ik ben Danilla Prigge, Verhuurmakelaar bij Brantjes Beverwijk. Het plannen van een bezichtiging is de eerste stap in de zoektocht naar jouw droomhuis. Ik kijk ernaar uit je binnenkort te ontmoeten en je te helpen bij het vinden van jouw nieuwe thuis!