Ga naar content

De Juffer 10

  • 100 m2 woonoppervlakte
  • 4 slaapkamers
  • Bouwjaar 1991
  • 135 m2 perceel

Wonen in een rustige straat, met een achtertuin richting het westen en het station Uitgeest praktisch om de hoek.
Bij de Juffer 10 in Uitgeest woon je niet alleen comfortabel, maar heb je de supermarkt en het station met goede verbinding naar Amsterdam en Alkmaar op loopafstand.

Deze tussenwoning heeft een woonkamer met een fijne, lichte leefruimte en ook nog eens tuingericht. Aan de voorzijde van de woning bevindt zich de keuken met inbouwapparatuur.
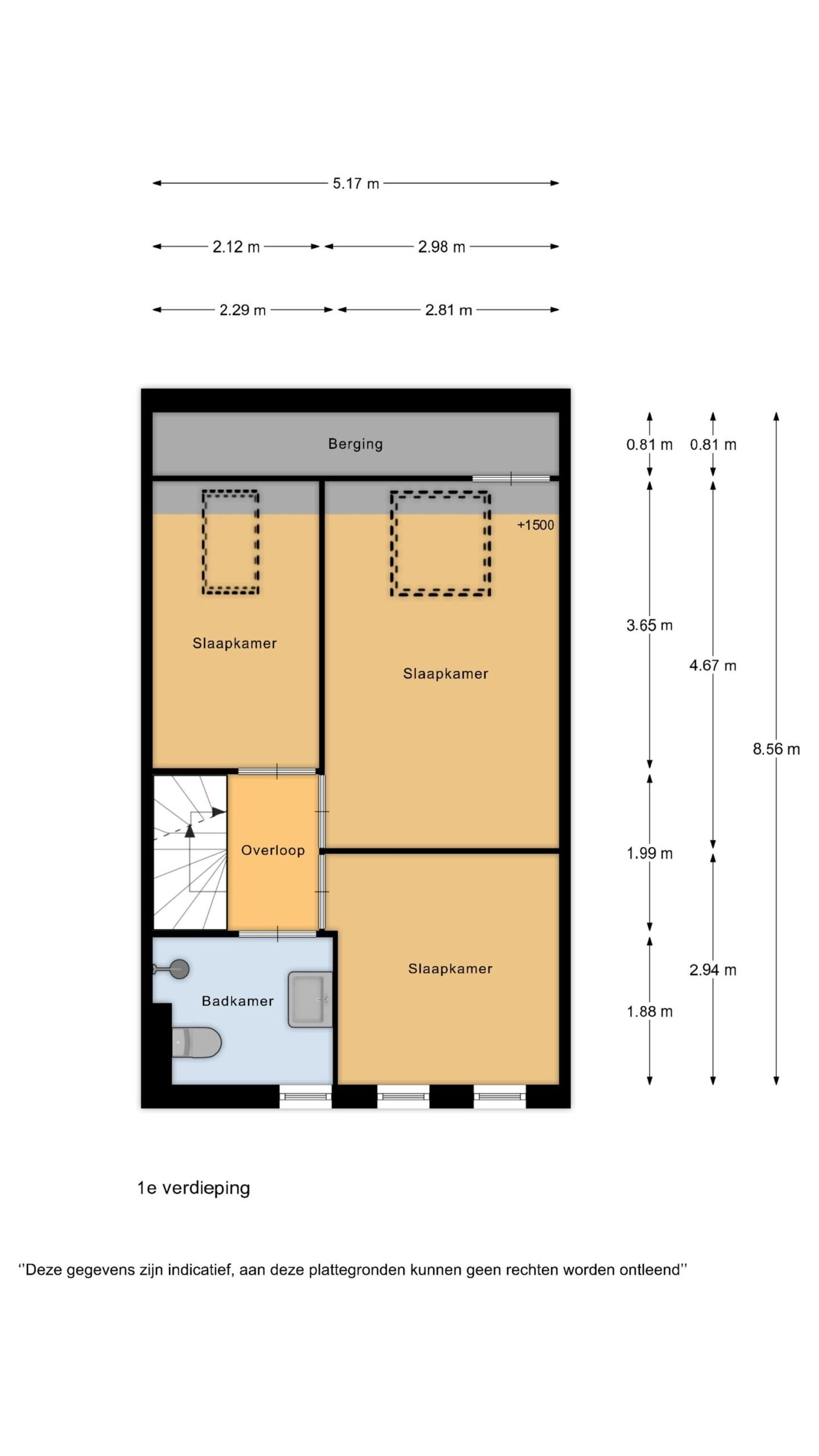
Op de eerste verdieping bevinden zich drie goed bemeten slaapkamers. De kamers zijn stuk voor stuk prettig licht en multifunctioneel in te richten als slaap-, werk- of hobbykamer. De verzorgde badkamer is compleet uitgevoerd met een inloopdouche, wastafelmeubel en toilet. De vaste trap brengt je naar de tweede verdieping. Hier bevindt zich een volwaardige vierde slaapkamer. Daarnaast is hier de opstelling van de cv-installatie en de aansluiting voor de wasmachine en droger. Extra bergruimte onder de schuine kap zorgt ervoor dat je ook hier voldoende opbergmogelijkheden hebt.

De achtertuin van circa 68 m² is een heerlijke plek om buiten te genieten. Met een goede zonligging is dit een fijne buitenruimte. Achterin de tuin staat een praktische berging met ruimte voor fietsen en tuingereedschap. Via de achterom is de tuin ook gemakkelijk bereikbaar.

De woning is gelegen in een rustige en kindvriendelijke woonwijk in Uitgeest. In de directe omgeving vind je diverse voorzieningen zoals basisscholen, winkels, sportverenigingen en speelgelegenheden. Ook het gezellige dorpscentrum en het treinstation van Uitgeest liggen op korte afstand, waardoor steden als Alkmaar, Haarlem en Amsterdam uitstekend bereikbaar zijn. Daarnaast biedt de nabijheid van natuur en het Uitgeestermeer volop mogelijkheden voor recreatie en ontspanning.

Bouwjaar: 1991
Gebruiksoppervlak woonfunctie: ca. 100 m2
Inhoud: ca. 352 m3
Perceeloppervlakte: 135 m2
Energielabel: B

BIJZONDERHEDEN:
– Tussenwoning met vier slaapkamers;
– tuingerichte woonkamer met laminaatvloer;
– achtertuin van circa 68 m2 met berging en achterom;
– keuken aan straatkant gesitueerd met inbouwapparatuur;
– op de 1e verdieping 3 slaapkamers;
– complete badkamer met douchehoek, wastafelmeubel en 2e toilet;
– volwaardige 2e verdieping waar met een kleine aanpassing een vierde slaapkamer te realiseren is;
– volledig geïsoleerd en voorzien van dubbel glas;
– Energielabel B;
– Cv-ketel Remeha (2010, eigendom);
– mechanische ventilatie aanwezig;
– voorzien van buitenzonwering;
– openbaar parkeren in de directe omgeving.

Interesse in dit huis? Schakel direct jouw eigen NVM-aankoopmakelaar in. Jouw NVM-aankoopmakelaar komt op voor jouw belang en bespaart je tijd, geld en zorgen. Adressen van collega NVM-aankoopmakelaars vind je op Funda.

Alles over deze woning
Overdracht
Prijs€ 445.000 k.k.
StatusBeschikbaar
AanvaardingIn overleg
Aangeboden sinds19 februari 2026
Bouw
Type objectWoonhuis
SoortEengezinswoning
TypeTussenwoning
Bouwjaar1991
Dak typeZadeldak
IsolatievormenDakisolatie, Muurisolatie, Vloerisolatie, Dubbelglas, Volledig geïsoleerd
Oppervlaktes en inhoud
Perceel135 m2
Woonoppervlakte100 m2
Inhoud352 m3
Buitenruimtes gebouwgebonden of vrijstaand0 m2
Indeling
Aantal kamers5
Aantal slaapkamers4
Locatie
LiggingAan rustige weg, In woonwijk
Tuin
TypeAchtertuin
StaatNormaal
LiggingNoordwest
AchteromJa
Uitrusting
Soorten warm waterCV ketel
Parkeer faciliteitenOpenbaar parkeren
Virtuele tour
Ik ben Raymond Westra, NVM Register Makelaar bij Brantjes Heemskerk. Het plannen van een bezichtiging is de eerste stap in de zoektocht naar jouw droomhuis. Ik kijk ernaar uit je binnenkort te ontmoeten en je te helpen bij het vinden van jouw nieuwe thuis!

Plattegronden

Verken de locatie De Juffer 10
Ik ben Raymond Westra, NVM Register Makelaar bij Brantjes Heemskerk. Het plannen van een bezichtiging is de eerste stap in de zoektocht naar jouw droomhuis. Ik kijk ernaar uit je binnenkort te ontmoeten en je te helpen bij het vinden van jouw nieuwe thuis!