Ga naar content

Celebesstraat 68

  • 96 m2 woonoppervlakte
  • 3 slaapkamers
  • Bouwjaar 1930
  • 120 m2 perceel

Charmante jaren ’30 twee-onder-een-kapwoning in hartje Wormerveer

In de rustige en geliefde Celebesstraat, midden in het sfeervolle Wormerveer, staat deze charmante twee-onder-een-kapwoning uit de jaren ’30. Een thuis met karakter, verrassend veel leefruimte en een fijne achtertuin waar je je direct kunt voorstellen hoe je hier straks de eerste lentezon meepakt. De woning ademt warmte, licht en authenticiteit. Wat je verwacht van een fijne jaren ’30-woning! Hier woon je rustig, centraal en met alle voorzieningen binnen handbereik. Welkom bij Celebesstraat 68.

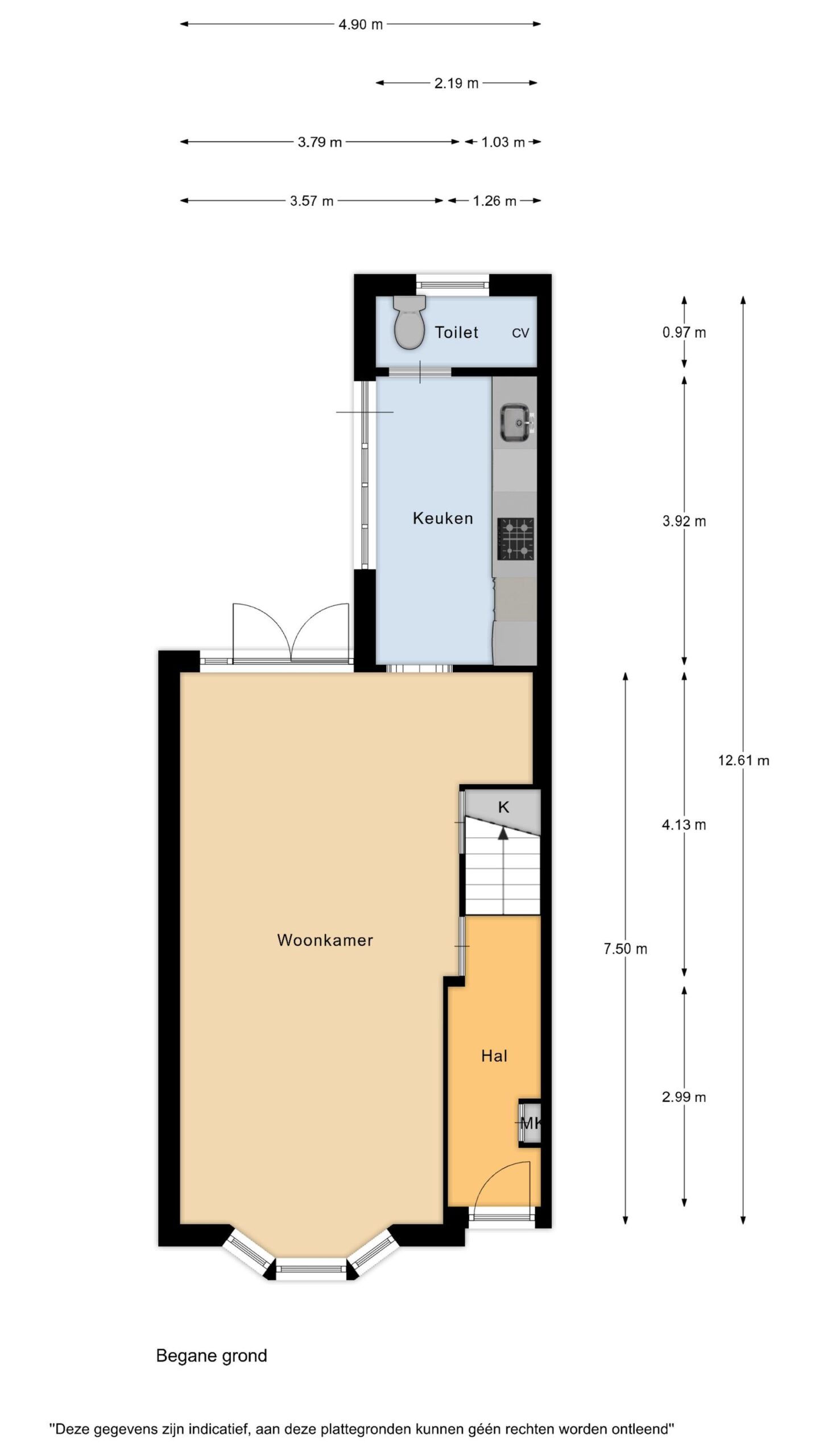
Via de voortuin stap je binnen in de hal waar het jaren ’30-karakter meteen voelbaar is. Vanuit hier bereik je de woonkamer: een warme, lichte leefruimte met grote raampartijen en een prettige sfeer. Denk aan gezellige avonden, lange diners en ontspannende momenten, deze ruimte voelt echt als het hart van het huis.
Aan de achterzijde vind je de keuken, keurig onderhouden en voorzien van alle wenselijke inbouwapparatuur. Vanuit de woonkamer en vanuit de keuken kijk je uit op de achtertuin en loop je zo door naar buiten.

De diepe achtertuin gelegen op het zuidwesten (ca. 58 m²) is een plek waar je het hele jaar door van kunt genieten. Of je nu uitgebreid wilt borrelen met vrienden, rustig wilt ontbijten in de ochtendzon of gewoon een boek wilt lezen in alle privacy. Met ruimte voor een loungehoek en een eettafel om zowel overdag als `s avonds te genieten. Dankzij de praktische achterom is de tuin bovendien gemakkelijk bereikbaar voor fietsen, tuinmaterialen en dagelijkse boodschappen.

Op de eerste verdieping bevinden zich twee slaapkamers. Beide kamers zijn licht en ruim opgezet en bieden volop mogelijkheden: een rustige master bedroom, een fijne kinderkamer, een werkplek of logeerkamer. De badkamer is functioneel en uitgevoerd met douche, wastafel en toilet.

De zolderverdieping is bereikbaar via een vaste trap en biedt handige bergruimte plus de optie om hier een extra slaapkamer te creëren. Ideaal voor wie op zoek is naar uitbreidingsmogelijkheden.

Bouwjaar: 1930
Perceeloppervlakte: 120 m²
Woonoppervlakte: 96 m²
Inhoud: 394 m³
Energielabel: D

Celebesstraat 68 ligt in een rustige, vriendelijke woonwijk op loopafstand van winkels, supermarkten en diverse eetgelegenheden. Ook scholen, sportfaciliteiten en het openbaar vervoer bevinden zich in de directe omgeving. Het treinstation van Wormerveer is snel bereikbaar en brengt je binnen no-time richting Amsterdam of Alkmaar. Daarnaast woon je hier vlak bij natuur- en wandelgebieden, zoals het Guisveld, waar je heerlijk tot rust kunt komen. De combinatie van centrale ligging en een rustige straat maakt dit een bijzonder fijne plek om te wonen.

Bijzonderheden:
– Charmante jaren ’30 twee-onder-een-kapwoning;
– Dak vernieuwd en geïsoleerd ca. 2010;
– Houten en kunststof kozijnen, deels dubbel glas;
– Schilderwerk buiten deels 2025 gedaan;
– Achtertuin van ca. 58 m² op het zuidwesten;
– Meetrapport monitoring zakkingsgedrag fundering is aanwezig;
– Glasvezelaansluiting aanwezig;
– Rustige straat nabij voorzieningen en openbaar vervoer;
– Oplevering in overleg.

Interesse in dit huis? Schakel direct jouw eigen NVM-aankoopmakelaar in. Jouw NVM-aankoopmakelaar komt op voor jouw belang en bespaart je tijd, geld en zorgen. Adressen van collega NVM-aankoopmakelaars vind je op Funda.

Alles over deze woning
Overdracht
Prijs€ 325.000 k.k.
StatusVerkocht onder voorbehoud
AanvaardingIn overleg
Aangeboden sinds23 november 2025
Bouw
Type objectWoonhuis
SoortEengezinswoning
TypeTwee onder één kapwoning
Bouwjaar1930
Dak typeZadeldak
IsolatievormenDakisolatie, Gedeeltelijk dubbelglas
Oppervlaktes en inhoud
Perceel120 m2
Woonoppervlakte96 m2
Inhoud394 m3
Buitenruimtes gebouwgebonden of vrijstaand0 m2
Tuinoppervlakte58 m2
Indeling
Aantal kamers4
Aantal slaapkamers3
Locatie
LiggingAan rustige weg, In woonwijk
Tuin
TypeAchtertuin
StaatVerzorgd
LiggingZuidwest
AchteromJa
Uitrusting
Soorten warm waterCV ketel
Parkeer faciliteitenOpenbaar parkeren
Virtuele tour
Ik ben Erik Hempenius, NVM Register Makelaar-Taxateur / Regiomanager bij Brantjes Wormerland. Het plannen van een bezichtiging is de eerste stap in de zoektocht naar jouw droomhuis. Ik kijk ernaar uit je binnenkort te ontmoeten en je te helpen bij het vinden van jouw nieuwe thuis!

Plattegronden

Verken de locatie Celebesstraat 68
Ik ben Erik Hempenius, NVM Register Makelaar-Taxateur / Regiomanager bij Brantjes Wormerland. Het plannen van een bezichtiging is de eerste stap in de zoektocht naar jouw droomhuis. Ik kijk ernaar uit je binnenkort te ontmoeten en je te helpen bij het vinden van jouw nieuwe thuis!