Ga naar content

Bickershorn 57

  • 105 m2 woonoppervlakte
  • 4 slaapkamers
  • Bouwjaar 1976
  • 189 m2 perceel

twee-onder-een-kap met vrijstaande stenen garage, eigen oprit en tuin op het zuiden!

Welkom aan de Bickershorn 57 in Oostknollendam: een fijne twee-onder-een-kap met vrijstaande stenen garage, eigen oprit en een verrassend lichte leefruimte. Hier woon je aan een rustige straat, met de zon in de tuin en alle ruimte voor hobby’s, thuiskomen en lekker leven. Het huis ademt zorg en onderhoud: vloerisolatie, airco’s, 10 zonnepanelen en een jonge cv-ketel zorgen voor comfortabel en energiezuinig wonen, klaar voor de komende jaren.

Indeling:
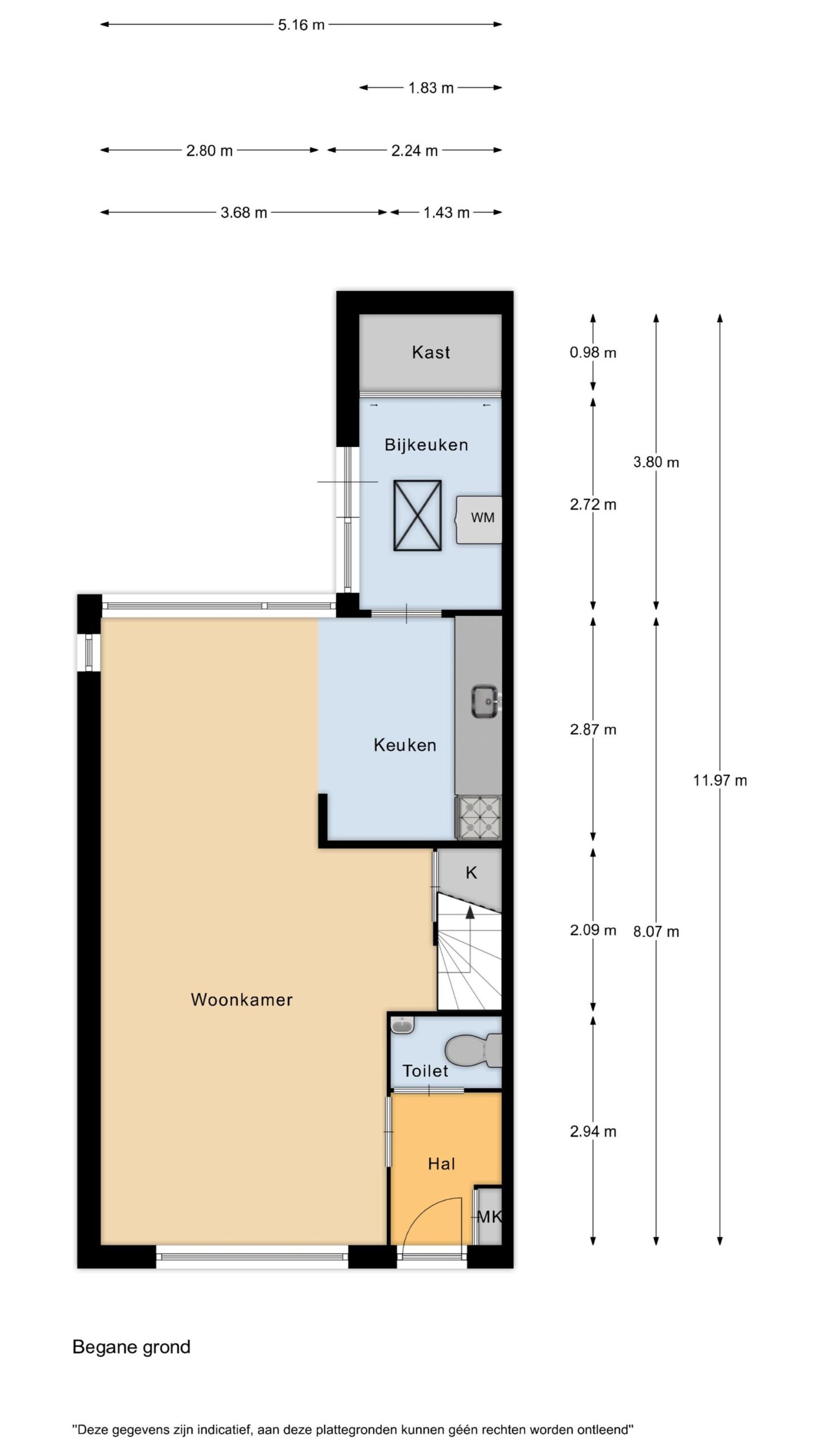
Via de voortuin en eigen oprit kom je binnen in de hal met toilet en trapkast. De woonkamer is prettig licht en rechthoekig van snit: een fijne plek voor een royale zit en eethoek. Aan de tuinzijde ligt de keuken met zicht op groen. Handig is de bijkeuken: extra bergruimte, plek voor wasapparatuur en direct doorlopen naar buiten of naar de garage. Op warme dagen houd je het binnen aangenaam met de airco; openslaande ramen en een zonvriendelijke achtertuin maken het woonplezier compleet. De overloop leidt naar drie slaapkamers, waaronder twee ruime kamers en een derde goede kinder-/werkkamer. De verdieping is functioneel en licht; nette afwerking, rechte wanden en prettig daglicht. Hier is ook de badkamer (basis, doch verzorgd) gesitueerd. De vaste trap brengt je naar een ruime zolderetage met vierde slaapkamer. Dankzij het dakraam en de overloop is dit een volwaardige extra woonlaag: ideaal als werkplek, logeerkamer of hobbyruimte. Op de overloop is extra bergruimte.

Buiten
De achtertuin ligt gunstig op de zon en biedt volop privacy. Er is plaats voor een grote terrastafel, een loungeset en groen. De vrijstaande stenen garage (ca. 16 m²) met recente dakbedekking is perfect voor de doe-het-zelver, motorrijder of als extra opslag. De oprit naast het huis maakt in- en uitladen eenvoudig.

Kenmerken:
Bouwjaar: 1976
Perceeloppervlakte: 189 m²
Woonoppervlakte: 105 m²
Inhoud: 378 m³
Energielabel: B

Ligging:
Oostknollendam is een charmant dorp dat de rust van het platteland combineert met de nabijheid van stedelijke voorzieningen. Gelegen aan de oevers van De Zaan, biedt het dorp prachtige uitzichten en volop recreatiemogelijkheden op het water. Hier kun je genieten van schilderachtige wandel- en fietsroutes, terwijl je toch binnen korte tijd in steden als Amsterdam en Alkmaar bent.

Wat Oostknollendam echt bijzonder maakt, is de hechte en levendige gemeenschap met een breed scala aan activiteiten en verenigingen. Of je nu houdt van biljarten, yoga, toneel, tennis, voetbal of jeu de boules, er is voor ieder wat wils. Regelmatig worden er cabaretvoorstellingen gegeven, en voor de kinderen is er de jaarlijkse luilakviering, begeleid door ouders. De drie dagen durende kermis is een hoogtepunt voor jong en oud. In het Dorpshuis kun je genieten van bandoptredens en spontaan georganiseerde vrijdagmiddagborrels. Op Koningsdag is er een autopuzzelrit met een afsluitende BBQ, en de jaarlijkse kroegentocht ‘Tochie Wormerland’ is een evenement dat je niet wilt missen.

De sociale controle in Oostknollendam is zeer groot, mede dankzij de buurt-WhatsApp-groepen die zorgen voor een veilige leefomgeving. Het dorp beschikt over een vrijwillige brandweer en twee AED’s voor noodgevallen. 

Kortom, Oostknollendam biedt een ideale mix van ontspanning, gemeenschapszin en veiligheid, waardoor het een geweldige plek is om te wonen.

Bijzonderheden:
* Intergas HREco 24 cv-ketel (apr. 2024)
* Airconditioning begane grond + 2 grote slaapkamers (2022)
* 10 AEG zonnepanelen met SolarEdge (installatie 2022; opwek indicatie ca. 4.200 kWh/jaar)
* Tonzon vloerisolatie (2020); gevel- en dakisolatie aanwezig
* Mechanische ventilatie, rookmelders per verdieping
* Meterkast vernieuwd (2022)
* Grotendeels HR-glas; 1e verdieping enkelglas
* Vrij recent dak garage (~4 jaar) en dak van de overkapping (~2 jaar)
* Rustige ligging in woonwijk
* Aanvaarding in overleg, kan snel

Interesse in dit huis? Schakel direct jouw eigen NVM-aankoopmakelaar in. Jouw NVM-aankoopmakelaar komt op voor jouw belang en bespaart je tijd, geld en zorgen. Adressen van collega NVM-aankoopmakelaars vind je op Funda.

Alles over deze woning
Overdracht
Prijs€ 450.000 k.k.
StatusBeschikbaar
AanvaardingIn overleg
Aangeboden sinds28 september 2025
Bouw
Type objectWoonhuis
SoortEengezinswoning
TypeTwee onder één kapwoning
Bouwjaar1976
Dak typeZadeldak
IsolatievormenDakisolatie, Muurisolatie, Vloerisolatie, Gedeeltelijk dubbelglas, HR glas
Oppervlaktes en inhoud
Perceel189 m2
Woonoppervlakte105 m2
Inhoud378 m3
Buitenruimtes gebouwgebonden of vrijstaand0 m2
Tuinoppervlakte120 m2
Indeling
Aantal kamers5
Aantal slaapkamers4
Locatie
LiggingAan rustige weg, In woonwijk
Tuin
TypeAchtertuin
StaatVerzorgd
LiggingZuid
AchteromJa
Uitrusting
Soorten warm waterCV ketel
Parkeer faciliteitenOpenbaar parkeren, Op eigen terrein
Virtuele tour
Ik ben Erik Hempenius, NVM Register Makelaar-Taxateur / Regiomanager bij Brantjes Wormerland. Het plannen van een bezichtiging is de eerste stap in de zoektocht naar jouw droomhuis. Ik kijk ernaar uit je binnenkort te ontmoeten en je te helpen bij het vinden van jouw nieuwe thuis!

Plattegronden

Verken de locatie Bickershorn 57
Ik ben Erik Hempenius, NVM Register Makelaar-Taxateur / Regiomanager bij Brantjes Wormerland. Het plannen van een bezichtiging is de eerste stap in de zoektocht naar jouw droomhuis. Ik kijk ernaar uit je binnenkort te ontmoeten en je te helpen bij het vinden van jouw nieuwe thuis!